Informacje
- Mieszkanie
- 2
- 2
- 1
- 71,13 m²
- 1937
Opis
Mamy przyjemność zaprezentować Państwu atrakcyjną nieruchomość usytuowaną na trzecim piętrze w trzy piętrowej przedwojennej kamienicy z 1935 roku. Budynek z cegły, w dobrym stanie, klatka schodowa czysta. Na półpiętrach możliwość wyjścia na współdzielone balkony.
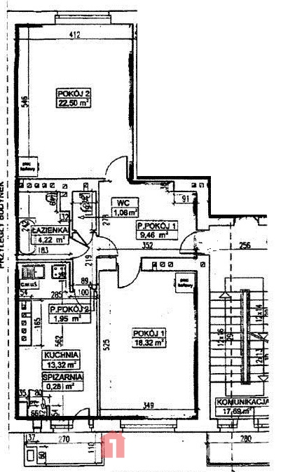
Mieszkanie składa się z 2 dużych, nieprzechodnich pokoi na planie kwadratu o powierzchni kolejno 22,50m2 oraz 18,32m2. Osobna jasna kuchnia ze spiżarką oraz wyjściem na balkon z ekspozycją wewnętrzną. Łazienka z osobnym wc oraz przestronny przedpokój o powierzchni około 10m2. Dwustronna ekspozycja na północny-zachód i południowy-wschód. Nieruchomość dobrze doświetlona, dodatkowym atutem, charakterystycznym dla kamienic jest wysokość pomieszczeń wynosząca 3,20m.
Okna z 2002 roku, bardzo dobrze amortyzujące dźwięk. Mieszkanie do generalnego remontu. Możliwość własnej aranżacji i modyfikacji rozkładu mieszkania. W mieszkaniu znajdują się dwa świetnie zachowane, oryginalne piece kaflowe z 1935 roku, a także bardzo dobrze utrzymane parkiety jesionowe (obydwa pokoje i przedpokój). Ponadto została zachowana drewniana stolarka wewnętrzna z mosiężnymi klamkami.
Odrębna własność, KW bez obciążeń. Do mieszkania doprowadzony gaz i prąd. Niski czynsz administracyjny ok. 350zł.
Do mieszkania przynależy piwnica o powierzchni 8,05m2.
Z klatki schodowej wyjście na zielony, cichy dziedziniec. Świetna lokalizacja, 20 minut piechotą od Rynku Głównego. Rewelacyjnie skomunikowane w każdą stronę Krakowa. Blisko do Galerii Krakowskiej oraz Dworca Głównego.
Nieruchomość mieści się w kamienicy przy al. Juliusza Słowackiego w dzielnicy Krowodrza (V dzielnica). W sąsiedztwie znajduje się Park Krakowski, dużo zieleni i wysoce wzbogacona infrastruktura zarówno gastronomiczna, społeczna jak i handlowo-usługowa. Odległość do najbliższego przystanku: 5 minut piechotą, w pobliżu przystanki tramwajowe i autobusowe: Nowy Kleparz lub Plac Inwalidów, skąd możliwy szybki i bezpośredni dojazd w każdą stronę Krakowa. Idealna lokalizacja dla studentów, w niedalekiej odległości AGH, ASP, Uniwersytet Pedagogiczny czy też Politechnika Krakowska (Wydział Architektury, Wydział Fizyki, Matematyki i Informatyki).
Zachęcamy do kontaktu i zapraszamy na prezentację nieruchomości.
Oferta na zasadzie wyłączności.
tel: 515 207 777
tel: 508 708 588
ENG-VERSION
We are pleased to present to you an attractive property located on the third floor, a three-story pre-war building from 1935. The tenement is preserved in good condition, clean staircase. On each floor of the staircase, the possibility of access to shared balconies.
The apartment consists of 2 large, non-convertible rooms size of 22,50m2 and 18,32m2. Separate kitchen with pantry and access to the balcony on the side of the courtyard, bathroom with separate toilet and a spacious hallway. Double-sided exposure to the north and south. The property is well lit, an additional advantage, characteristic of town houses is the height of the rooms of 3.77m.
Windows from 2002, well cushioning the sound. The apartment for general renovation. Possibility of own arrangement and modification of the apartment layout. Very well maintained parquet and two very nice original tiled stoves. Great preserved wooden, interior woodwork with brass door-handles.
Separate ownership, without encumbrances. Gas and electricity supplied to the apartment. Low rent about 380 PLN.
To the apartment belongs a basement size of 8,05m2.
From the staircase exit to a green, quiet courtyard. Great location, 20 minutes walk from the main square. Very well communicated in every direction of Krakow. Close to the shopping mall and the Main Railway Station.
The property is located in a tenement house on Juliusz Słowacki Avenue in Krowodrza district (5th district). In the neighborhood there is Krakowski Park, a lot of greenery and a highly enhanced with infrastructure both gastronomic,social and commercial.
Distance to the nearest stop: 5 minutes on foot to the- Nowy Kleparz or Plac Inwalidów, from where it is possible to quickly and directly access any direction of Cracow.
Ideal location for students, close to AGH, Academy of Fine Arts, Pedagogical University or Cracow University of Technology (Faculty of Architecture, Faculty of Physics, Mathematics and Computer Science).
We encourage you to contact us and invite you to the presentation of the property.
Offer on an exclusive basis.
Adres
Otwórz w Mapach Google-
Adres: Aleja Juliusza Słowackiego 33, Kraków, Polska
-
Miejscowość: Kraków
-
Województwo: Małopolskie
-
Kod pocztowy: 31-160
-
Dzielnica: Krowodrza
-
Państwo: Polska
Szczegóły
-
Numer oferty Primo20410
-
Cena 766 000 zł
-
Metraż 71,13 m²
-
Sypialnie 2
-
Pokoje 2
-
Łazienka 1
-
Rok budowy 1937
-
Nieruchomość Mieszkanie
-
Typ transakcji Sprzedaż
-
Piętro 3
Informacje dodatkowe
Umów się na prezentację
Co jest w pobliżu?
- Edukacja
-
Malwina Radomiska Lasek Edukacja Dla Dzieci Kropka (0.05 km)
-
Szkoła Rodzenia im. dr Jadwigi Beaupré (0.06 km)
-
Katarzyna Patrycja Biernacka Nauka Języka Angielskiego i (0.05 km)
-
Zdzisław Banek Meritt (0.07 km)
-
Inikom Bożena Tarasiuk Piotr Jan Misiowiec Tomasz Jan (0.07 km)
- Zdrowie i medycyna
-
Jerzy Szczeklik Gabinet Lekarski Specjalistyczny Kardiologiczno (0.02 km)
-
Małgorzata Rosa Nzoz Medimed (0.05 km)
-
Szkoła Rodzenia im. dr Jadwigi Beaupré (0.06 km)
-
Atopia (0.07 km)
-
Grażyna Jasieniak Pinis Wspólnik Spółki Cywilnej Nzoz (0.07 km)
- Zakupy
-
Textile House Second Hand (0.06 km)
-
Textile House (0.06 km)
-
Anna Bienias (0.06 km)
-
Firma Handlowo Usługowa Janrys Jan Ryszka (0.06 km)
-
Sklep Color Robert Wojciech Szulc (0.07 km)
